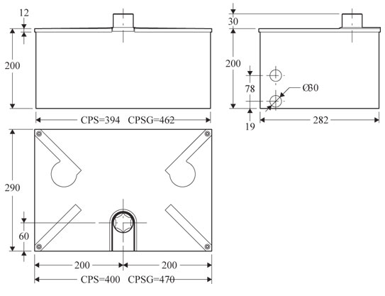
توضیحات
مشخصات فنی
گالری

درب اتوماتیک بی اف تی مدل ساب

درب اتوماتیک زیر سطحی بی اف تی ایتالیا مدل ساب

از سری جک‌های هیدرولیک زیرسطحی می‌باشد که شرایط باور‌نکردنی را تحقق می‌بخشد. این سری محصول با تنوع بالا امکان اتوماتیک ساختن نوع دربی را فراهم می‌سازد بدون آنکه نمای درب را تحت الشعاع قرار دهد و محدودیتی در نوع کاربری ندارد.

 خصوصیات :

·         خصوصیت تک لنگه باز شوندگــی

·         حرکتی کاملاً هوشمند با تغییر سرعت

·         تنظیم زاویه باز شوندگی تا 180 درجه

·         کاملاً مقاوم در مقابل نفوذ گردو خاک و آب

·         برخورداری از قفل هیدرولیک برای ممانعت از حرکت

·         هماهنگ سازی روشنایی محیط ورودی با حرکت درب

·         قابلیت برگشت پذیری در جک و خلاص بودن پکیج هیدرولیک

این سیستم که شرایط خاصی را برای نصب از شرایط محیطی می طلبد امکانات گسترده ای را در اختیار مصرف کنند ه قرار میدهد از جمله امکان باز نمودن درب تا 180 درجه و تغییر این زاویه برای هر لنگه که بهترین راهکار برای ورودی های منتهی به رمپ ها میباشد و ...

بستر سازی اولیه جهت نصب این سیستم که معمولاً نیاز به یک سری فعالیت های عمرانی دارد پیشنهاد این سیستم را برای هر پروژه محدود میسازد ولی در پروژه های عمرانی با کاربری های مسکونی وتجاری استفاده از این سیستم قدرت طراحی برای خلق آثار معماری منطبق بر استاندارد های جهانی به طراح می دهد البته نصب این سیستم نسبت به سری ELI ساده تر و اجرایی تر برای هر پروژه ای میباشد.

با توجه به تولیدات کمپانی که این نوع سیستم را در پنج تیپ به بازار مصرف عرضه می کند و متناسب با شرایط فیزیکی و نیازهای پروژه پیشنهاد می گردد . سرعت عملكرد درب براي سیکل کاری تعریف شده برای هر جک 14 الی 33 ثانيه ميباشد . این سری محصول که با ولتاژ 230 عرضه معرفی می گردد با وات مصرفي  250  به کمک تجهیزات هیدرولیک طراحی شده در این تیپ سیستم قدرت بالایی  را جهت بحرکت در آوردن درب به لولا ها اعمال می کند و بطور متوسط نیروی ثابتی در بازه 220 الی 240 N.m را ایجاد میکند   . ضریب استاندارد حرارتی این سیستم  60+ تا 10- درجه سانتیگراد میباشد . خصوصیت فیزیکی موتور و فونداسیون آن که کاملاً در زیر سطح زمین نصب میگردد به گونه ای است که به هیچ عنوان امکان نفذ آب یا خاک را به تجهیزات مکانیکی نمی دهد و دارای بالاترین ضریب حفاظتی ( IP67 ) در سری محصولات الکترو نیک و مکانیکی میباشد  .